四川群众呼声

四川群众呼声

四川省网上群众工作平台

小程序中打开
SGCtE_1762412575 (来自小程序)
来源:四川群众呼声
2025-11-06 19:40:27
已受理
绵阳市网络新闻发言人
您的留言已转交给相关机构进行处理,请您耐心等待回复。
受理时间:2025-11-07 14:22:00
答复
绵阳高新区网络发言人
来源:四川群众呼声
答复时间:2025-11-20 14:31:04
答复
绵阳高新区网络发言人
来源:四川群众呼声
答复时间:2025-11-20 11:27:19
答复
绵阳高新区网络发言人
来源:四川群众呼声
答复时间:2025-11-20 10:30:19
留言评价

评价时间:2025-11-20 22:45:52

评价结果:
满意
答复速度:4分
解决程度:3分
办理态度:5分

评分理由:

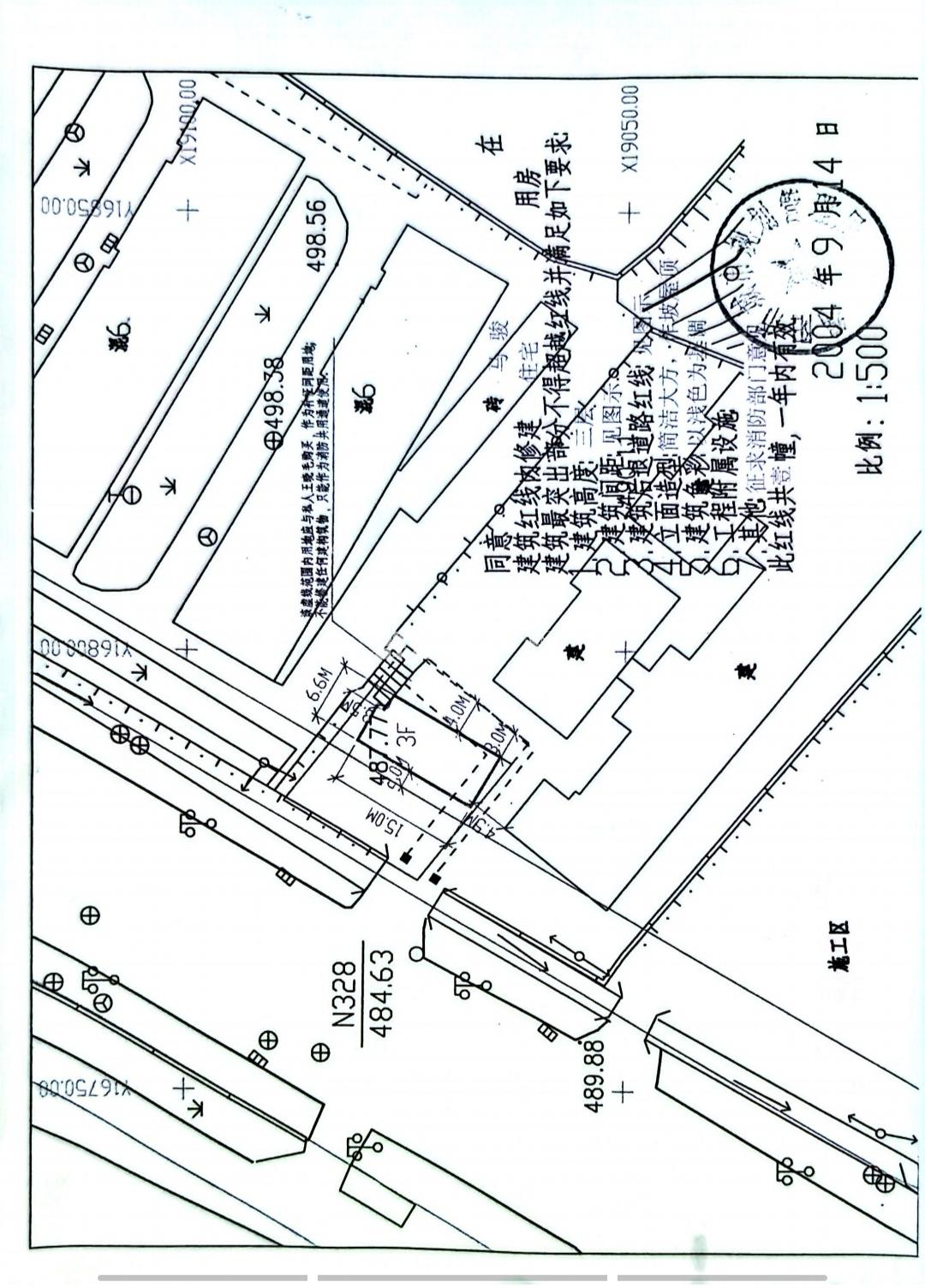
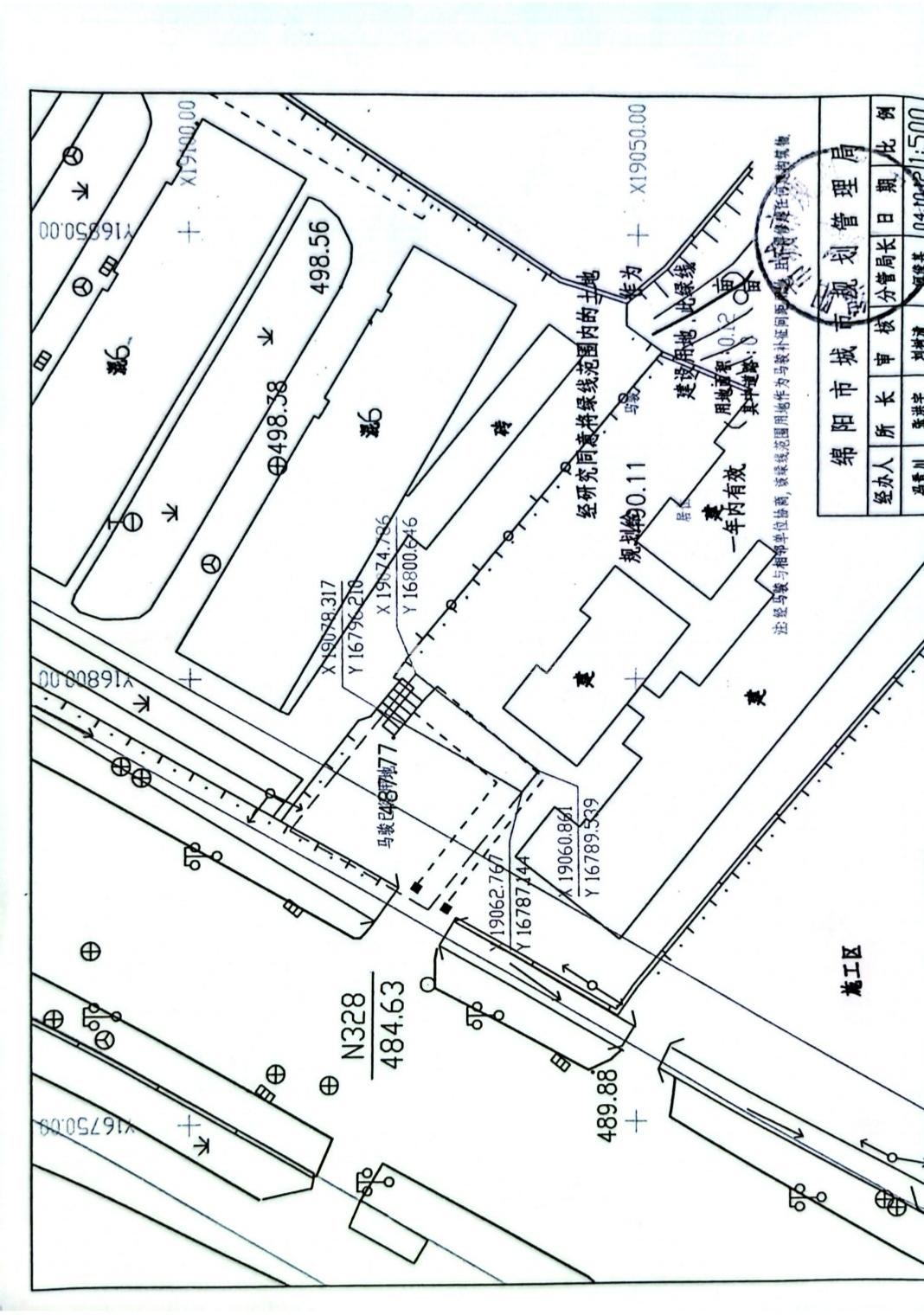
首先,非常感谢政府职能部门的回复。其次,1.房屋住建在消防通道上,导致小区没有消防通道,所以消防通道该如何恢复?恢复之前如果发生消防安全事故,导致消防车无法进入所产生的后果该由谁来承担?2.该房主家声称关系好,有后台,是否这个原因才是明知道占用消防通的情况下,还能办产权证呢?
留言转交
转交的地区:
负责人选择:
留言回复
*回复必读

1. 请注意措辞,避免敏感词,避免特殊符号,否则将影响您的回复的审核进程,严重违反者将不予采纳。

2. 以群众呼声为第一信号 以群众满意为第一标准。

3. 留言信息将以您认证单位或机构作为作者展示,在回复正文中请以解决问题为重点,讲求质效,着力解决问题。

4. 用户收到您的回复之后会对您的回复进行评价;若7天之后该用户没有做出评价,则系统默认此次回复为满意。

5. 留言信息一旦提交,将不可更改,不可删除,请用户谨慎编写您的回复。

6. 包括但不限于违反以上条款,不遵守平台《服务协议》,不遵守平台管理的机构的回复均不会被平台采纳。

*回复
图片
选择图片
评论
暂无评论
加载中 城建 城市规划
加载中 SGCtE_1762412575
[投诉] 青春园三号门门口自建房的合理性
来源:四川群众呼声
加载中 绵阳市委书记
加载中 2025-11-06 19:40:27
已受理
绵阳市网络新闻发言人
您的留言已转交给相关机构进行处理,请您耐心等待回复。
受理时间:2025-11-07 14:22:00
官方回复
来源:四川群众呼声
加载中 绵阳高新区网络发言人
加载中 2025-11-20 14:31:04
官方回复
来源:四川群众呼声
加载中 绵阳高新区网络发言人
加载中 2025-11-20 11:27:19
官方回复
来源:四川群众呼声
加载中 绵阳高新区网络发言人
加载中 2025-11-20 10:30:19
评价
评价结果:
满意
答复速度:4分
解决程度:3分
办理态度:5分